Start seite
Ausgewählte Beiträge zur Technik von Dampfbooten
Zurück zur Seite  „Die Technik der Dampfboote“
Die Tandemverbundmaschine
Zurück zur Seite  „Die Technik der Dampfboote“
Eine    besondere    Bauart    sind    Verbundmaschinen    mit    übereinander    liegenden Zylindern ,   deren   Kolben   über   eine   gemeinsame   Kolbenstange   auf   die   Kurbelwelle wirken.    Dabei    sind    die    oben    liegenden    Zylinder    als    Hochdruck-,    darunter    die Niederdruckzylinder    ausgebildet.    Vorteile    der    kompakten    Bauweise:    Eine    geringere Bodenfläche   und   weniger   komplexe   Bodenfundamente   im   Gegensatz   zu   liegenden Maschinen. Wegen   ihrer   höheren   Bauart   wurden   sie   -   zumindest   in   den   U.S.A.   -   auch   als   "Steeple engine" (engl. steeple: Kirchturm) bezeichnet. In   der   Schifffahrt   waren   sie   in   größeren   Schiffen,   insbesondere   in   Schleppern,   weit verbreitet. Auch   in   Fischerbooten   kamen   sie   vermehrt   zum   Einsatz,   einerseits   waren   sie in    der   Anschaffung    günstiger,    andererseits    überzeugten    sie    durch    ihre    kompakten Abmessungen. In   kleineren   Booten   wurden   sie   jedoch   nur   selten   eingebaut,   da   die   Liebhaber   von kleinen   Dampfbooten   eher   eine   "richtige"   Compound   (mit   nebeneinander   angeordneten Zylindern) bevorzugten. Die    Firma    Simpson    &    Denisons,    Dartmouth,    UK ,    später    umfirmiert    in    Simpson, Strickland   &   Co,   Ltd. ,   hatte   1895   auf   der   'Inventions   Exhibition'   ein   Boot   mit   einer Maschinenanlage    ausgestellt,    die    aus    einem    Kingdon-Kessel    und    einer    Tandem Compound mit den Maßen 2" & 5" x 3½" bestand.
Die Tandem-Verbundmaschine und ihre Steuerung Hubert Paulus
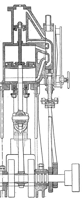
Bereits   1880   hatte   George   Kingdon   nach   diesem   Tandem- Prinzip    seine    'Compound    Launch    Engine'    vorgestellt    (Bild rechts). Zwei   Jahre   später   folgte   eine   Vierfach-Expansionsmaschine mit       einem       Hoch-,       zwei       Mitteldruck-       und       einem Niederdruckzylinder, jeweils paarweise übereinander. Letztere wurde in 8 Größen mit Leistungen von 10 bis 100 PS gebaut:
Die   Zeichnung   unten   zeigt   einen Schnitt   durch   die   Zylinder   und   den Schieberkasten.
Die    Vorteile    dieser    Bauweise:    Fortfall    der zweiten   Kurbel   und   eines   Kurbelwellenlagers, einer      Kolbenstange      mit      Kreuzkopf      und Pleuelstange,      nur      ein      (etwas      größerer) Schieberkasten,     nur     die     halbe     Steuerung gegenüber    einer    herkömmlichen    Compound und    damit    eine    erhebliche    Einsparung    von Gewicht   und   Material.   Auch   ein   Receiver   ist nicht nötig.
Auf    den    Fotos    oben    sind    der    Schieberspiegel    (links) sowie   der   dazugehörige   Schieber   einer   Maschine   von Cliff Blackstaffe zu sehen. Wichtig    ist    die    Bedeutung    der    markierten    Stelle    des Schiebers (roter Pfeil). Es   ist   eine   Nut   quer   durch   den   Schieber,   sie   hat   über   die Seiten Verbindung zum Frischdampf! Außerdem     ist     festzustellen,     dass     alle     drei     ovalen Öffnungen    im    Schieber    eine    gemeinsame    Verbindung haben (blaue Pfeile)! Die große Öffnung führt den Abdampf nach draußen.
Das   animierte   Bild   zeigt   die   Verteilung   des   Frischdampfes,   des   teilweise   entspannten Dampfes    sowie    des    Abdampfes    einmal    bei    der    Abwärtsbewegung    des    Kolbens (Schieberstellung:   unten),   dann   wechselt   der   Schieber   nach   oben   und   der   Kolben bewegt sich aufwärts, u.s.w.